山东ld体育网址-ld体育欢迎你有限公司
联系人:李经理
联系电话:13276363035
QQ:867220900
公司地址:山东省潍坊市高新区光电路155号光电产业加速器(一期)
PRODUCT
联系人:李经理
联系电话:13276363035
QQ:867220900
公司地址:山东省潍坊市高新区光电路155号光电产业加速器(一期)
更新时间:2026-04-29 作者:ld体育网址-ld体育欢迎你有限公司
1、简介
天气环境条件监测是高速公路科学运营的一个重要依据,雨、雪、雾、积雪、结冰等情况对高速公路的运营都有直接的影响。据统计,在冬季冰雪路面对公路交通安全影响最大,成为冬季交通安全的第一杀手。它们对高速公路的影响主要有安全影响:在冰雪气候条件下,高速公路很容易引发多车相撞的恶性交通事故;经济效益影响:交通事故不但造成了重大的人员伤亡,还带来另外重大的经济损失。
近年来,我国发生了多起由恶劣天气条件引起的特大交通事故,给人民的生命和财产造成极大损失,也引起了相关部门的关注,经调研发现,冰雪路面交通事故发生主要原因是驾驶员对道路环境严重程度估计不足,车辆速度过快、路面湿滑、车间距保持不够引起的。如果驾驶员对道路气象通行条件有充分的了解,获取了现场气象信息,那么事故发生的概率会明显降低,这也就是我们要在高速公路设置气象监测及现场预警发布系统的原因。其设置目的:能够精准的提供结冰位置,结冰时间,结冰程度等信息,实现对保障道路内受影响道路的自动报警、预警功能,使道路安全管理部门及时准确了解道路气象信息,从而保障行车安全。
该系统采用组网监测的运行方式,连续获得沿线多点的气象及路面状况信息情况,反馈给监控中心,并将检测数据与预定的判定条件比较,以确定是否有雨雪、结冰等恶劣天气;在确定恶劣天气的情况下通过检测数据与预定指标库比较,确定出预警等级和告警提示;最后,再根据指标控制级别从预定策略库中调用对应的控制策略来应对恶劣天气对高速公路造成的影响,从而做到全天候保障高速公路的运行。
2、系统组成与工作原理
本系统组成:
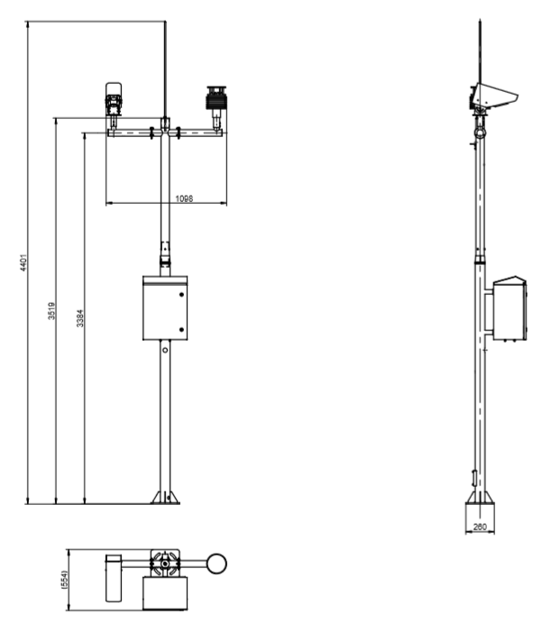
交通气象ld体育网址-ld体育欢迎你:包括:温湿风压雨自动气象站、非接触式遥感式路面状况检测仪、综合气象数据采集仪、设备结构立杆、供电及采集控制箱等。
工作原理:ld体育网址-ld体育欢迎你可以测量大气温度、大气湿度、风向、风速、气压、雨量、遥感路面状况(路面温度,路面状态:干燥、潮湿、积水、结冰、冰水混合物等)等气象要素,以此为依据,判断相关大气物理变量因素的变化趋势,从而预警预报出当时天气状态和变化;交通气象ld体育网址-ld体育欢迎你将实时监测数据自动上传至交管部门监控中心,监控中心配置相应交通气象监测平台软件,软件平台进行多个站点自动气象数据监测,数据分析研判,道路气象预警,道路结冰判断等监测工作,软件多模块协同工作,并由工作人员随时调用历史数据及日志记录查询,由此指导发出决策和应急预案。

3、主要技术指标
测量要素 | 测量范围 | 分辨率 | 准确度 | |||
气温 | -40~+80℃ | 0.1℃ | ±0.2℃ | |||
相对湿度 | 0~100% | 0.1% | ±2% | |||
风向 | 0~360° | 0.1° | ±1° | |||
风速 | 0 ~70m/s | 0.01m/s | ±0.1m/s | |||
降水量(mm) | 0-10mm/min | 0.01mm | ±0.4mm(累计雨量<10mm); | |||
气压 | 150 ~1020hPa | 0.1hPa | ±1 hPa | |||
路面温度 | -40~+80℃ | 0.1℃ | ±0.5℃ | |||
路面状况 | 水:0—10mm; 冰:0—10mm; 雪:0—10mm; | 0.01mm | 0.82~0.7 | 0.7~0.6 | 0.6~0.3 | 0.3~0.01 |
良好 | 湿滑 | 很滑 | 极滑 | |||
湿滑系数:0-1 | 0.01 | 与路面摩擦系数评价相等 | ||||
可分辨出路面状态:干燥、潮湿、积水、结冰、冰水混合物 | ||||||
综合气象数据采集器 | 1、采集器可接收气象监测设备的数据信息,整合处理后,发送给系统平台; 2、能指示并上报各传感器的工作(通讯)状态; 3、时钟准确度:月累计误差<30秒; 4、供电方式:DC 12V; 5、功耗:小于2W 。 | |||||
第二部分 交通气象ld体育网址-ld体育欢迎你技术方案
1、交通气象监测设备简介
1.1产品概述
交通气象ld体育网址-ld体育欢迎你主要利用综合采集控制技术、计算机软件技术、通讯技术等技术对多种气象传感器从结构到系统组成上进行集成化应用。能够连续获得交通沿线的气象信息,能够对风速、风向、温度、湿度、路面状况、路面温度等高速公路多个气象要素进行实时检测,通过远程传输完成各类数据的汇总并及时传送给交通部门,为交通相关部门做好各沿线交通气象保障服务提供第一手资料,以此为基础,可为高速公路安全主管部门和人们的出行提供及时的气象信息服务。
交通气象ld体育网址-ld体育欢迎你采用的气象传感器包括:湿温风压一体化微型气象传感器、激光遥感式路面状况传感器等,还包括专用综合气象数据采集器、立柱支撑结构、供电通信控制箱等单元。
1.2交通气象ld体育网址-ld体育欢迎你功能
(1)能够对大气温度、大气湿度、风向、风速、气压、雨量、遥感路面状况(干燥、潮湿、积水、结冰、冰水混合物)、路面温度、湿滑系数等气象要素进行全天候检测;
(2)主动采集各气象要素数据,对采集的数据进行预处理和算法处理,对采集数据进行相关统计形成逐分钟的值并定位存储在ld体育网址-ld体育欢迎你存储器内;
(3)自动上传监测数据,上传频率为1分钟;
(4)气象ld体育网址-ld体育欢迎你提供RS232、RS485、RJ45网口、或GPRS无线等通讯方式;
(5)系统供电方式:220V交流市电或12VDC太阳能供电。
1.3交通气象ld体育网址-ld体育欢迎你特点
(1)ld体育网址-ld体育欢迎你采用模块化组装结构设计,紧凑小巧,各传感器尺寸小、重量轻,安装方便;
(2)采用光电测量技术进行能见度、当前天气现象和路面状况测量,完全通过遥感测量,不需要破坏路面,省时省力,免维护;
(3)采用超声波测量技术进行风速风向测量,无活动转动部件,完全免维护长周期测量,适应高速公路恶劣环境应用;
(4)各传感器结构材料为高质量硬质铝材,表面进行了阳极钝化处理,并进行多道喷漆(高温烤漆)保护;所有螺钉均选择耐腐蚀不锈钢螺钉;
(5)壳体内部是密封的,达到了IP65防护等级,具有野外恶劣气候适应性;
(6)系统功耗低,小于8W,市电或太阳能供电均可;
(7)系统具有防雷措施,其通信接口和电源接口均具有防雷设计,可将雷击损害降到最低。
1.4主要设备技术指标
①温湿雨风一体化六要素气象传感器

六要素一体气象站是一种测量多要素气象要素的专业级传感器,可同时测量大气温度、大气湿度、风速、风向、气压、雨量等六种主要气象要素。其特点是精度高,响应时间快,串口输出,方便用户直接通过PC或外接仪器进行测量。
产品特点:
?坚实耐用的超声波风设计
?整个系统免维护,便于安装
?系统协议公开
?标准RS485输出
?拥有大容量内存及丰富系统指令
技术指标:
规格 | 直径约150 毫米, 高度约260 毫米, 重量约 0.5 千克 |
温度 | 测量范围-40~80°C |
相对湿度 | 测量范围0~100% 相对湿度 |
气压 | 测量范围300~1100 百帕 |
风向 | 原理超声波 |
风速 | 原理超声波 |
雨量 | 光学雨量原理 雨量测量范围 0~4mm/min;雨量精度 ±0.4mm(累计雨量<10mm); |
基本信息 | 接口RS485, |
②遥感式路面传感器

采用多光谱遥感技术非接触准确检测出道路表面结冰、积雪和积水的厚度。设备安装不需要封闭道路、不需要切割路面,安装工作既安全又方便。维护量少,是道路气象系统组成中一项理想选择。它既可以安装在现有的气象站上,也可以安装在路面视野无遮挡的其他建筑物上,为道路管理部门提供准确的监测数据,在道路安全出现险情之前,采取响应措施。能够适用于高速公路路面、桥面、事故多发地区、雨雪多发地区、坡道转弯区域等关键路段的监测。
功能
?检测路面积水、积雪、结冰厚度
?远距离遥感检测路面状况
?非埋入式安装快捷简便
?维护成本低
应用
?桥面(高海拔桥梁、跨湖泊桥梁、城市高架桥、立交桥等)
?事故多发区域
?车流量大的区域
?雨雪多发地区
特点
?远距离测量路面积水、冰和雪
?测量路面状态
?测量积水、冰面、湿滑程度
?非埋入式设计、抗锈蚀
?红外检测最远18米
?无需封闭车道,安装维护简单
?坚固设计,全天候测量
技术指标
监测距离 | 2-18米 | |||
检测直径 | 大于25cm | |||
角度 | 30-90度 | |||
测量原理 | 红外多光谱光学 | |||
电源输入 | +12VDC (允许输入范围:+11V—+24V) | |||
最大功耗 | 平均4W,非加热状态:≤3W 加热开启状态:≤6W | |||
工作温度 | -40~+60℃ | |||
工作湿度 | 0~100% | |||
路面状态 | 干燥,潮湿、积水、结冰、积雪、冰水混合物; | |||
测量厚度 | 水:0—10mm | |||
冰:0—10mm | ||||
雪:0—10mm | ||||
分辨率:0.01mm | ||||
湿滑程度 | 范围:0—1;与路面摩擦系数评价相等 | |||
0.82-0.7 | 0.7-0.6 | 0.6-0.3 | 0.3-0.01 | |
良好 | 湿滑 | 很滑 | 极滑 | |
路面温度 | 范围:-40~+80℃;精度:±0.5℃,分辨率:0.1℃ | |||
通讯接口 | RS485(支持多机通信)、RS232; 波特率范围: 9600bps(1200-19200bps可设置) | |||
镜头污染检测 | 光学镜头的污染等级测量及内部自动污染补偿 | |||
路面 | 混凝土、沥青路面 | |||
防护等级 | IP65 | |||
安全 | 无安全问题 – 红外遥感测量技术 | |||
③综合气象数据采集器

气象采集器是交通气象站的核心,由硬件和嵌入式软件组成;采集器集成了多种气象环境测量要素的多种信号,集成高速高精度处理芯片,采用了高精度24位AD采样,多参量采集一体技术,具备多路数字与模拟气象信号采集功能,信号采集精度达到0.1%。采集器具备以下功能特点:
(1)实时数据采集。可采集的实时数据包括:温度、湿度、(气压)、风向、风速、降雨量、能见度、天气现象、路面状况等传感器数据。
(2)实时数据处理,能指示并上报各传感器的工作(通讯)状态。
(3)具备实时时钟,能与监控中心对时,时钟准确度:月累计误差<30秒;
(4)通过RS485/232/TCP等进行数据输出,具备RS232、RS485有线、RJ45网口或GPRS/CDMA无线通信方式
(5)系统有雷电保护功能。
(6)具备完备的状态指示及数据报警功能。
(7)可连接扩展模块增加对外接传感器的监测。
(8)具备交直流电源配置功能。如果用户配置太阳能电池供电,设备内部可配置充放电控制器和蓄电池,设备完全掉电的情况下,蓄电池保证设备运行45天。
④供电及采集控制箱

供电及采集控制机箱包含配电供电模块、充放电控制、防护机箱及断路器、空开、防雷等。
(1)供电方式:DC 12V;可配置220V市电或太阳能供电系统;
(2)备用电源:如果用户配置太阳能电池供电,内部配蓄电池;
(3)输出电压:12VDC;
(4)标称容量: 200Ah以上;
(5)持续输出时长:1080小时(45天)以上;
(6)工作环境温度:-40℃~+55℃;
(7)工作环境湿度;5%~95%RH;
(8)采集控制箱内安装有防雷单元,含开关、空气开关、及电源防雷器,主要解决机箱内部电器对感应雷的防护问题;
(9)采集控制箱具有防盗、防水、散热、密封、防尘、抗高温及低温等可靠的安全防护性能设计。
⑤设备结构立杆
ld体育网址-ld体育欢迎你结构立杆支架由主立杆、传感器支架等组合,含基座和连接件,材质为不锈钢。主杆总高度≥3m,并配备避雷针;主杆、支架及连接件具备防拆卸、移动等安全保护要求。

(1)包含立柱支架、地脚法兰、地基预埋件及电气辅材;
(2)立柱支架由主立杆、传感器支架等组合、基座和连接件组成,并配备避雷针等防雷装置;
(3)主立杆杆及支架组合整体采用烤漆(喷塑)处理,外表面平整、防锈蚀;
(4)采用集成式横臂支架,减少光路误差;
(5)钢结构采用的钢材符合GB/T700-1988国家标准要求,采用优质钢材;
(6)结构组件连接、紧固螺钉配套不锈钢标标准件;
(7)主杆总高度≥3m;
第三部分 系统实施技术方案
1、概述
系统充分利用了一系列技术先进、品质可靠、准确度高的气象传感器通过组网方式采集交通沿线实时气象环境数据,为交通安全提供气象预警服务,系统供电单元为整个系统提供持续的电力,解决野外、山区无市电供给的问题,无线通讯模块可将现场气象数据传送至监测中心,由监测中心统一分析决策。从而为高速公路管理提供了一种先进的自动化辅助管理手段,保障恶劣天气条件下交通安全运营。
2、配置及选型
依据高速公路所经地的天气气候特征,设计多要素气象监测,包括:风速、风向、温度、湿度、路面状况等,多要素气象站主要放置在具有地区代表性气候特点的地点。充分发挥各检测站作用,保障道路的正常运营。
考虑供电、防护、维修等因素。气象ld体育网址-ld体育欢迎你以靠近有人值班的收费站、服务区、养护区、路政队等地布设为主,兼顾气候特点,在灾害性天气频发路段适当加密布设ld体育网址-ld体育欢迎你。有配点的位置以交流供电,无配点的地点选用太阳能供电。
交通气象ld体育网址-ld体育欢迎你点选取原则:ld体育网址-ld体育欢迎你的地点选取至关重要。配置多要素气象ld体育网址-ld体育欢迎你的选址既要能反映当地公路的气象状况,也要能代表周边一定范围内的自然气候状况的地点。ld体育网址-ld体育欢迎你周边不应有高大林木、大范围稠密的灌木丛林和建筑物的阻挡;不受烟火源的污染等。并且应便于提供电源,通讯线路;对于采用GPRS/CDMA移动网进行无线通讯方式的设备,应选取通讯网络信号正常的地方。气象ld体育网址-ld体育欢迎你布设应尽量考虑设在气象环境比较恶劣的地方,如:环境湿度高的水网地区、易产生横切风的地方、易产生局地小气候的谷地、山崖地区等。
3、安装总要求
观测站主控机箱内部设有弱电防雷保护系统,观测站顶部需要安装避雷针,并与基础防雷接地系统有效连接;
气象传感器、电源、无线通讯等线缆利用支架的金属管内部穿线,在观测站安装完毕后,不能从外部看到裸露的电源或信号线缆,蓄电池放置到采集箱中;
观测站悬挂的机箱要求各个功能模块单元布局合理,符合电磁兼容要求,散热性能好,具有一定的密封、安全防盗、防尘防水等性能。
4、传感器安装高度和布设
ld体育网址-ld体育欢迎你各传感器安装高度为3±0.5m,温湿风压一体传感器和路面遥感检测仪分开安装,防止相互干涉。
5、立杆和支架要求
ld体育网址-ld体育欢迎你支架由主立杆、传感器等支架组合、基座和连接件组成,材质主要为不锈钢、镀锌钢材。
主杆、支架及连接件具备防拆卸、移动等安全保护要求。
主杆及支架组合整体的外部均采用乳白色喷涂处理。
6、线缆布设要求
ld体育网址-ld体育欢迎你的线缆布设的基本要求是从外表上看不到电源线和信号线。所有线缆从支架、立杆、机箱等金属管内布线,达到隐蔽、保护、美观、防盗割、防雷电等效果。
各传感器主要布设在立杆的支架上,电源、信号线均通过支架、立杆的金属管内布线到机箱内,接头处设有防水和隐蔽装置。
7、机箱要求
机箱配有防水及遮阳罩,具有散热、密封、防尘等功能。
进出机箱的所有电源线、信号线等必须从机箱背面直接进入立杆金属管内,接口密封良好,达到防水、防尘的要求。
机箱须装有锁定装置,配有防盗锁具,具有防盗、防破坏能力。
机箱要求悬挂在主支撑杆上,从机箱内部用紧固螺栓与立杆固定,实现安全防盗。
机箱内须配有防雷模块装置,达到防雷标准规范要求。
机箱外部采用乳白色喷涂处理。
8、系统供电
分为两种方式:220VAC交流市电和12VDC太阳能直流供电。
原则上,尽量使用交流市电,在特殊情况,市电无法达到的地方可使用太阳能供电系统。
太阳能供电系统要求:在连阴雨天,能满足设备持续工作5天(按需配置)。
9、通讯
推荐采用现有的GPRS移动网。
由于高速公路电缆铺设改造费用大,而GPRS移动网覆盖范围及稳定性已经非常完善,所以系统数据推荐采用GPRS无线数据传输方式。
10、防雷接地
气象ld体育网址-ld体育欢迎你各传感器通常安装在3米立杆上,常常为附近最高点,易引雷。为确保人身、设备安全,根据实际情况,设计如下方案:
具备良好的防雷功能,包括防护直击雷和感应雷;
设备安装时应良好接地,接地电阻小于4Ω;
ld体育网址-ld体育欢迎你立杆顶部应安装有避雷针,基础底部应有接地网;
在机箱内应安装有防雷单元,主要解决机箱内部电器对感应雷的防护问题。
11、安装基础要求
承载ld体育网址-ld体育欢迎你的基础,选择硬质基础平台上安装,对需要现场预制基础平台,须参照有关基础施工要求进行设计和施工。
基础平台施工要求符合国家有关防雷规范。

第四部分 技术优势及服务优势
1.技术优势
1)产品质量优势
交通气象ld体育网址-ld体育欢迎你及其传感器均通过了国内权威检测机构的计量检测,特别是各传感器的测量准确值(精准度)获得了交通部和气象局的计量检定证书;
整套系统包括结构、电器、软件均采用模块化设计,便于后期维护和功能扩展。
2)服务优势
我公司产品均为国产化具有自主知识产权的产品,符合交通行业标准和规范,由于我国环境污染严重,交通压力大,恶劣天气对交通安全的影响尤其严重,因此迫切需要能符合国情、服务迅速的监测系统产品,而进口产品许多在国内产生“爆表”等一些水土不服的现象,同时,价格较贵,一旦发生故障,服务很难迅速跟上,同时,一些国防民生领域,为了保密,也需要对进口产品进行一定的限制甚至限购,因此,我们承诺:
(1) 本地化服务队伍,7×24小时及时响应。
(2) 质保期内坏件设备如在2天内不能排除故障,直接更换。
(3) 定期进行硬件升级,发挥最优性能。
 文章来源:https://www.ytqxz.com/jjfa/417.html